Plans Shared for River John Health Centre/Food Bank

river john food bank plan
Volunteers working towards constructing a new health centre and food bank in River John briefed the Municipality of Pictou County on its plans during August’s monthly council meeting.
Alan McNutt, who is a member of the Community Support Society of River John, said the society recently received $651,000 from the provincial government for a health centre and food bank to be built in district 4.
He said the idea for the food bank came together in early 2021 after the society received requests from members of the community and local service groups, but as plans evolved it became a food and health centre initiative.
The society is a non-profit organization and is prepared to operate the health centre/food bank with volunteers except for medical staff. He said about 35 percent of the food for the food bank will come from Feed Nova Scotia which is the norm for most food banks in the province.
“River John has no local grocery store, no food bank services, nor are there any health care services except the pharmacy so the closest food bank and health care services are in Pictou or Tatamagouche which is basically 20-plus kilometres away or half hour drive. There are a lot of people who are having a hard time putting food on the table and may not have a car or gas money to get to these areas. It will definitely be going to help people in need in the heart of our community.”
He said the area its services reaches outside of River John from Toney River to West Branch and according to the 2021 Census, about 3700 households are in its catchment area and 27 percent of these have an income of less than $20,000 a year.
McNutt said the Community Support Society started a food pantry last year in River John and offered some delivery services during the pandemic. He said Feed Nova Scotia had a similar food delivery system in place but since Covid restrictions have lifted, these deliveries have stopped and the demand on the pantry has increased dramatically.
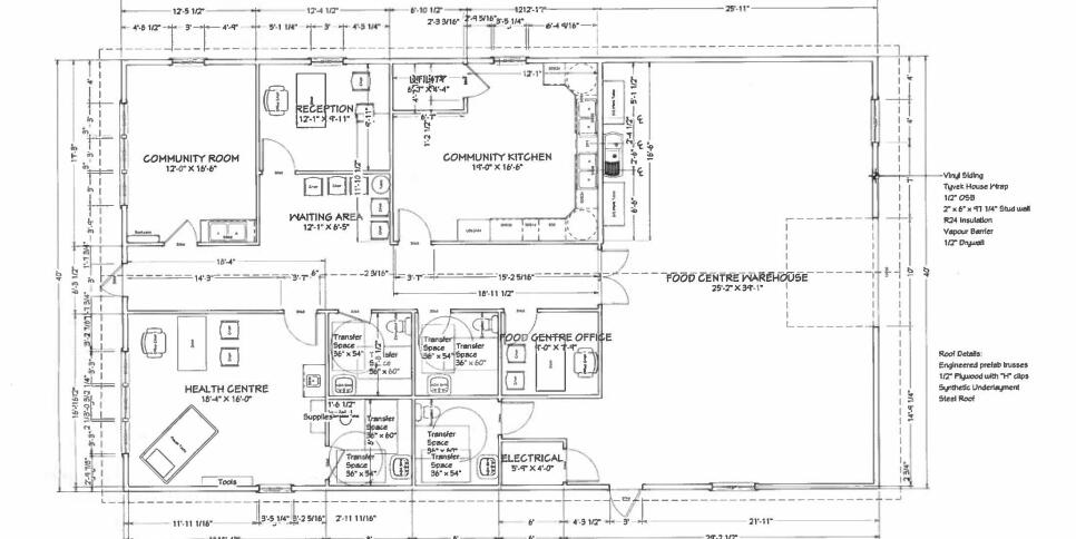
He said the building was originally going to be placed on land next to the ballfield in River John that it was able to lease for a dollar a year, but as its plans expanded into a health care centre, more room was needed so it ended up purchasing four acres where the community garden was located.
“That will amalgamate all of our projects on one central property,” McNutt said adding there will be food storage and distribution as well as greenhouses on site that will grow food to be shared from the food bank.
Regarding the health centre, the society has been in discussions with a nurse practitioner about working on a part-time base from the centre as well as a foot care nurse and blood collection.
In early March, the provincial government committed to $651,000 which was the construction cost of the building at the time. However, costs have soared since it first started its plans in 2021 and the move to another property means it now requires a municipal sewer line extension or an on-site septic system.
He said some changes were made to building plans to keep it on budget, including going from a walk-in fridge/freezer to smaller coolers. It also hopes to have the building operated by solar power. It will need to fundraise for its greenhouses, landscaping as well as food that isn’t provided by Feed Nova Scotia. Its goal is to have the health centre/food bank completed by the end of January.
“The general reaction is positive. When the project was first announced, we had a little bit of negativity on Facebook, but it was mainly people who thought we should be fixing the roads and things of that nature. I don’t think people understood the government process that these funds are available from the departments for health care and food security.”
He said he answered these questions with a three-and-a-half-page document on social media and since this time, he has heard nothing but positive comments.

In Other News